本文压力草莓视频APP色版资料由优质草莓视频APP色版生产报价厂家为您提供。
压力草莓视频APP色版是一种将压力转换为气动信号或电信号的装置,用于控制和远程传输。它可以将测压元件传感器检测到的气体和液体等物理压力参数转换成标准电信号(如4 ~ 20毫伏等)。)为测量、指示和过程调整提供辅助仪器,如指示器警报、记录器和调节器。

基本介绍

压力草莓视频APP色版(图1)
压力草莓视频APP色版是工业实践中最常用的传感器。它广泛应用于各种工业自动控制环境,涉及水利水电、铁路运输、智能建筑、生产自动控制、航空航天、军工、石油化工、油井、电力、船舶、机床、管道等多个行业。
压力草莓视频APP色版分为两类:电动和气动。电子式统一输出信号为直流信号,如0-10mA、4-20mA或5V。气动统一输出信号是20 ~ 100pa的气压。
压力草莓视频APP色版可根据不同的转换原理分为力(力矩)平衡型、电容型、电感型、应变型和频率型。下面简要介绍几种压力(差压)草莓视频APP色版的原理、结构、使用、检修和校准。
2.专用集成电路外围设备少,可靠性高,维护简单易行,体积小,重量轻,安装调试极为方便。
3、铝合金压铸外壳,三端隔离,静电喷塑保护层,坚固耐用;
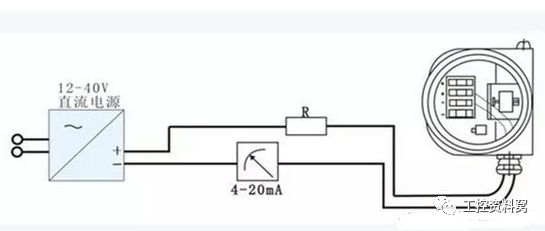
4.4-20mA DC双线信号传输,抗干扰能力强,传输距离长;
5.发光二极管,液晶显示器和指针是三个指示头,非常方便现场阅读。可用于测量粘性、结晶和腐蚀性介质;
6.高精度和稳定性。除了进口原装传感器经过激光校正外,整机在工作温度范围内的综合温度漂移和非线性得到了很好的补偿。
选择规则
1.根据要测量的压力类型
压力类型主要包括表压、绝对压力、压差等。表压是指基于大气的小于或大于大气压力的压力;绝对压力是指以绝对压力为零为基准,高于绝对压力;压差是指两个压力之间的差值。
2.根据测量的压力范围
通常,实际测量压力是测量范围的80%。
应该考虑系统的最大压力。一般来说,压力草莓视频APP色版装置压力范围的最大值应达到系统最大压力值的1.5倍。一些水压和过程控制有压力峰值或连续脉冲。这些峰值可能达到“最大”压力的5倍甚至10倍,并可能对草莓视频APP色版造成损坏。接近或超过草莓视频APP色版最大额定压力的连续高压脉冲会缩短草莓视频APP色版的实际寿命。然而,增加草莓视频APP色版的额定压力会牺牲草莓视频APP色版的分辨率。系统中可以使用缓冲器来减少尖峰,这会降低传感器的响应速度。
压力草莓视频APP色版通常设计用于承受2亿次循环中的最大压力,而不会降低性能。选择草莓视频APP色版时,可以在系统性能和草莓视频APP色版寿命之间找到折衷的解决方案。
3.根据测试的介质
根据测量介质的不同,可分为干气、气液、强腐蚀性液体、粘性液体、高温气液等。根据不同的介质进行正确选择,有利于延长草莓视频APP色版的使用寿命。
4.根据系统的最大过载
系统的最大过载应小于草莓视频APP色版的过载保护限值,否则会影响草莓视频APP色版的使用寿命,甚至损坏草莓视频APP色版。通常,压力草莓视频APP色版的安全过载压力是满量程的2倍。
5.根据所需的准确度等级
草莓视频APP色版的测量误差按精度等级划分,不同的精度对应不同的基本误差限值(以满量程输出的百分比表示)。在实际应用中,根据测量误差的控制要求和经济使用原则进行选择。
6.根据系统工作温度范围
测量介质的温度应在草莓视频APP色版的工作温度范围内。如果使用温度过高,会造成较大的测量误差,影响草莓视频APP色版的使用寿命。在压力草莓视频APP色版的生产过程中,将对温度影响进行测量和补偿,以确保温度影响引起的测量误差在精度要求范围内。如果温度较高,可考虑选择高温类型压力草莓视频APP色版或采取辅助冷却措施,如安装冷凝管和散热器。
7.根据测量介质和接触材料的相容性
在某些测量场合,测量介质具有腐蚀性,因此有必要选择与测量介质兼容的材料或进行特殊的工艺处理,以确保草莓视频APP色版不被损坏。
8.根据压力接口形式
通常螺纹连接(M20×1.5)是标准接口形式。
9.根据电源和输出信号
通常压力草莓视频APP色版使用DC电源供电,提供多种输出信号选项,包括4 ~ 20mA。DC;、0 ~ 5v.dc、1 ~ 5v.dc、0 ~ 10ma.dc等。,可以有232或485个数字输出。
10.根据现场工作环境和其他条件
是否有振动和电磁干扰等。,选择时应提供相关信息,以便采取相应的处理措施。在选择类型时,也可以根据具体情况考虑其他方法,如电气连接。
正确使用
使用压力传感器时,应考虑以下条件:
1.防止草莓视频APP色版接触腐蚀性或过热的介质;
2.防止沉淀物沉积在导管中;
3.测量液体压力时,应在工艺管道一侧打开压力口,以避免沉淀和炉渣积聚;
4.测量气体压力时,压力入口应在工艺管道的顶部打开,草莓视频APP色版也应安装在工艺管道的上部,以便将积聚的液体容易地注入工艺管道;
5、压力管道应安装在温度波动小的地方;
6.测量蒸汽或其他高温介质时,必须连接冷凝器,如缓冲管(盘管),草莓视频APP色版的工作温度不应超过限值;
7.冬季结冰时,安装在室外的草莓视频APP色版必须采取防冻措施,以避免因结冰体积导致引压口内液体膨胀而损坏传感器;
8.测量液体压力时,草莓视频APP色版的安装位置应避免液体的冲击(水锤现象),以免传感器因过压而损坏;
9.布线时,将电缆穿过防水接头(附件)或缠绕管,并拧紧密封螺母,以防止雨水通过电缆泄漏到草莓视频APP色版外壳中。
《压力草莓视频APP色版》本文地址:http://www.shfengxiao.com/news/js/559.html 转载请勿删除!
全国服务热线